平屋プラスワンモデルハウス・分譲地
ラインナップ
家づくりの流れ
土地情報
実績紹介
展示場
会社概要
社長ブログ
お問い合わせ
閉じる
HOME
平屋プラスワンモデルハウス・分譲地
ラインナップ
家づくりの流れ
土地情報
実績紹介
展示場
会社概要
社長ブログ
お問い合わせ
電話をかける
資料請求をする
展示場の案内
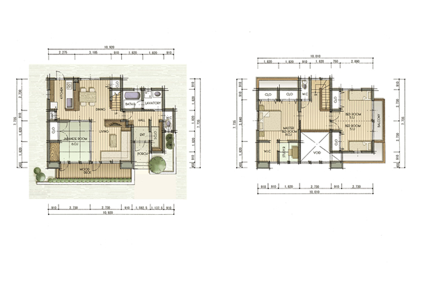
ラインナップ オークス
オークスのコンセプト
永い年月を経ても、色褪せず愛着を持ち 心から癒される、寛げる住まい
近代的で上品さを備えたアーバン型プレーリー住宅のOACS-P(プレーリー)と
温もり・歴史感・愛着が深まるコンテンポラリーなOACS-U(ユーソニア)が誕生しました。
他のラインナップを見る