下記のリンクから、プランの詳細を閲覧できます。
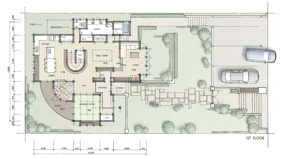
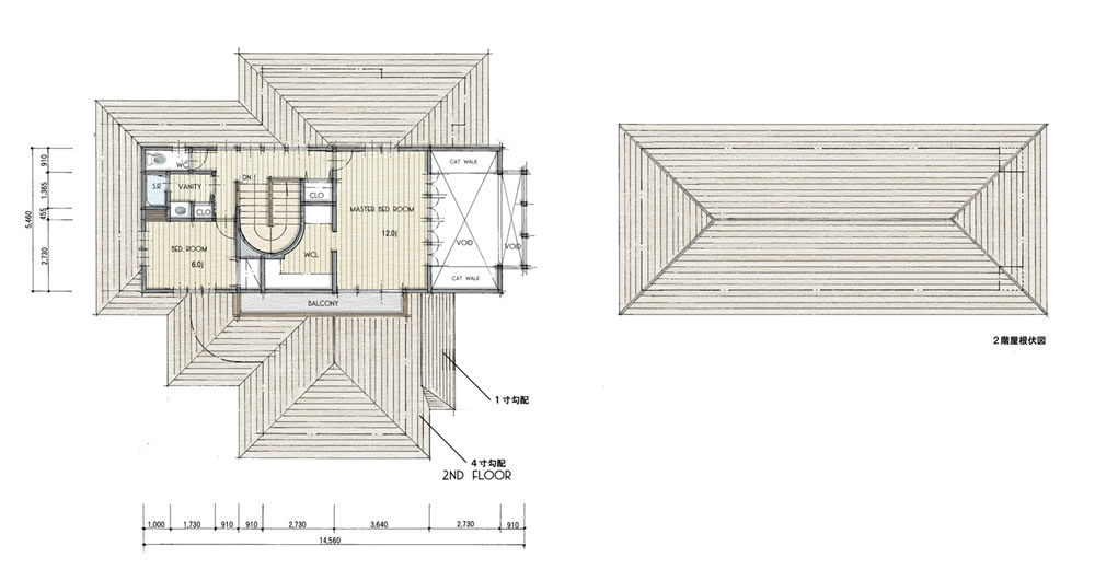
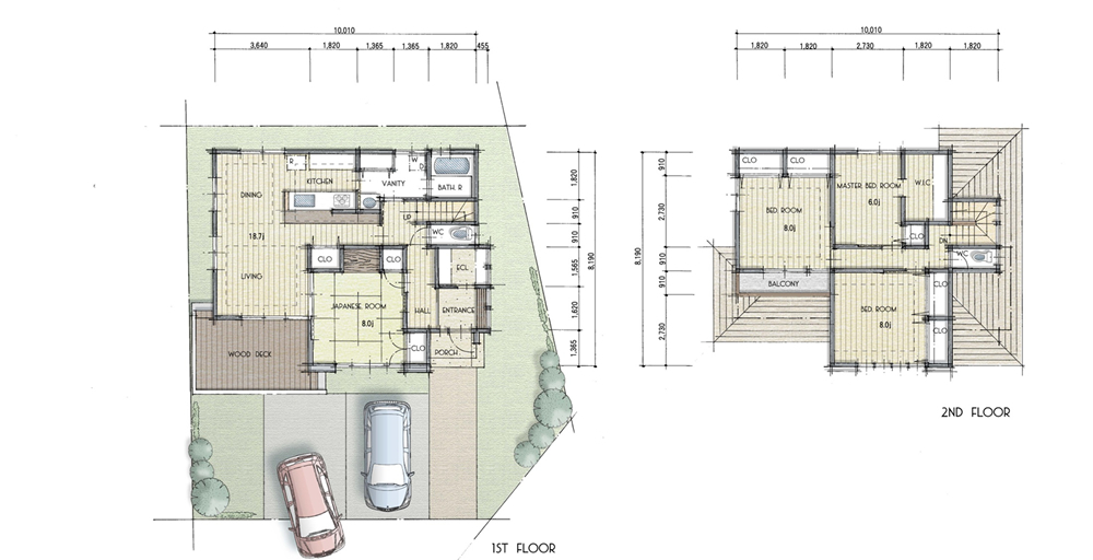
水回りや外壁が痛みだした築25年を迎えたマイホーム。
夏は暑く・冬は寒い生活の中で、より快適な生活を求め、建替えを決意。
これからの人生を満喫する意味で、飽きのこない住まいでありながら、冷暖房に頼りすぎない、自然な暮らし方で、快適なエコライフを実現。
将来、娘達が結婚し、婿を迎え入れる場合を想定し、増改築しやすい間取りとなっている。
| 単世帯 | 家族4人 |
|---|---|
| 家族構成 | 夫54歳 妻49歳 長女20歳 次女16歳 |
| 住宅区分 | 建替え |
| 住宅購入期間 | 1年 |
| こだわった点 | 構造・性能【断熱】 |
| 購入価格 | 3,238万円 |



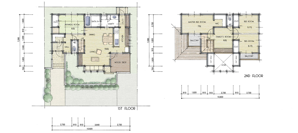
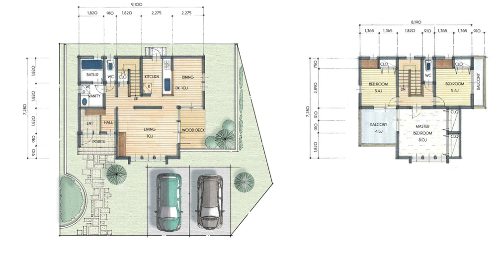
都心から離れ、自然と戯れ、第二の人生を満喫する暮らし。
ガーデニングを通じて生まれる楽しい交流をテーマに家の内側や外側にも自然を主役とする仕掛けが施されています。
上手に年を重ねられよう、塗り壁や無垢の自然素材を取り入れることで、愛情と温もりが感じられる一軒です。
| 単世帯 | 家族2人 |
|---|---|
| 家族構成 | 夫61歳 妻58歳 |
| 住宅区分 | 住替え |
| 住宅購入期間 | 1年8ヶ月 |
| こだわった点 | 素材【自然素材】 |
| 購入価格 | 2,561万円 |



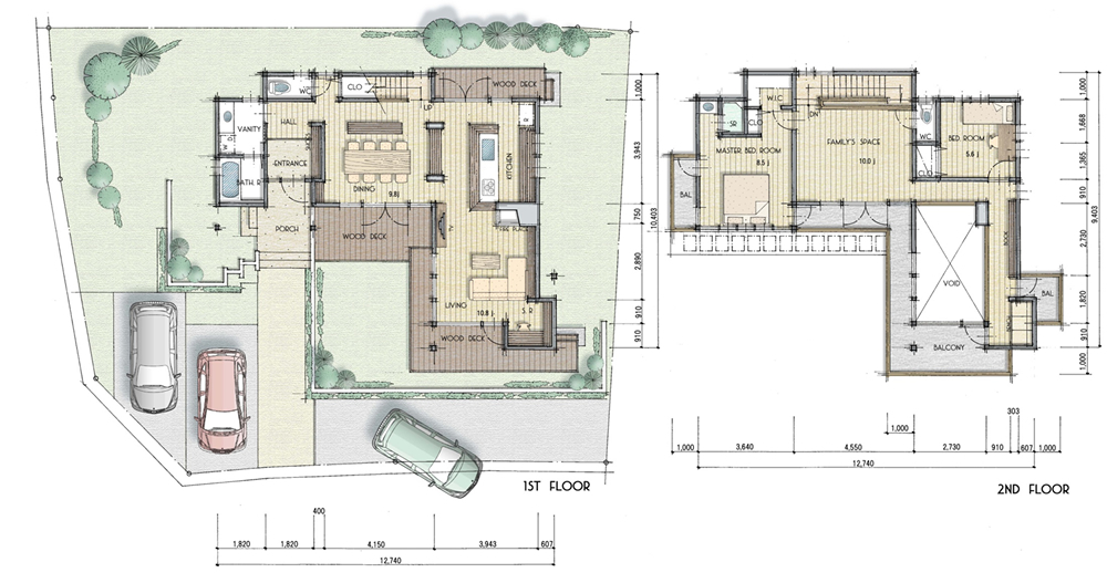
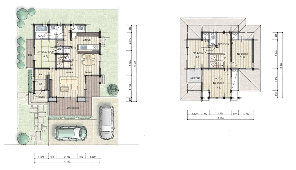
隣地には歯科医院併用の旧邸があり、人通りが多い事を考慮したプランデザインを重視。
海外留学経験のある夫妻が、心から寛ぎ安らくためのヒーリング感とともに、その先(年十年経っても)も変わらない重厚な美しさを追い求めた佇まい。
それぞれが好きなことをしながら、一緒にいる・・・ゆるやかにつながる空間設計です。
| 単世帯 | 家族3人 |
|---|---|
| 家族構成 | 夫48歳 妻51歳 長女18歳 |
| 住宅区分 | 住替え |
| 住宅購入期間 | 2年 |
| こだわった点 | デザイン【外観】 |
| 購入価格 | 5,025万円 |







結婚してから住み続けた2LDKの賃貸マンション。
共に仕事を持つ忙しい夫婦が、家に帰ってからでも仕事が出来る部屋が必要不可欠となった。
新築マンション購入も視野に入れていたが、自然を感じさせることが子育てに重要であるという想いから、マイホーム購入を決意。
言葉を交わさなくとも、同じことを想ったり、感じたり、家族の距離が自然と縮まるよう「ワンルーム空間」を重視しました。
また、将来的に家族【子供】が増えることを想定した間取りとなっている。
| 単世帯 | 家族4人 |
|---|---|
| 家族構成 | 夫42歳 妻38歳 長男6歳 |
| 住宅区分 | 住替え |
| 住宅購入期間 | 1年3ヶ月 |
| こだわった点 | デザイン【間取り】 |
| 購入価格 | 2,923万円 |



賃貸アパートで生活してき息苦しさ。何かに閉ざされた生活。
あんなカーテンを閉めておくような生活はもうしたくないという想いからこのプランが実現しました。
自然の光や四季の変化を楽しめるように視線が広がりに配慮したこの佇まいは開放感溢れています。
また、敷地内の高低差を活かした外塀は、プライバシーを確保するとともに外の景色を切り取る重要な役割も兼ねています。
| 単世帯 | 家族4人 |
|---|---|
| 家族構成 | 夫47歳 妻42歳 長男14歳 長女10歳 |
| 住宅区分 | 住替え |
| 住宅購入期間 | 1年5ヶ月 |
| こだわった点 | デザイン【間取り】 |
| 購入価格 | 2,821万円 |




外回りは、近くの鉄道のもらい錆が目立たず、メンテナンスフリーのレンガを採用。
建替えする以前は、細く区切られた部屋が多く、リビングやダイニングも手狭で暗かった為、新しい住まいでは、明るく開放感があり、家族のつながりを大切にした。
| 単世帯 | 家族3人 |
|---|---|
| 家族構成 | 夫46歳 妻41歳 長男14歳 |
| 住宅区分 | 建替え |
| 住宅購入期間 | 1年2ヶ月 |
| こだわった点 | 素材【外壁】 |
| 購入価格 | 3,318万円 |




築33年のご実家が建替えの時期を迎えたこともあり、同居を決意。
生活時間の異なる2つの世帯が、お互いのプライベートを守りながら、気兼ねなく暮らせる二世帯住宅である。
| 二世帯 | 家族5人 | |
|---|---|---|
| 家族構成 | 親世帯 | 夫62歳 妻60歳 |
| 子世帯 | 夫43歳 妻37歳 長女9歳 長男6歳 | |
| 住宅区分 | 建替え | |
| 住宅購入期間 | 1年9ヶ月 | |
| こだわった点 | デザイン【間取り】 | |
| 購入価格 | 5,473万円 | |



南東の角地の立地条件を活かし、光のあたたかさ、風のさわやかさ感じる、健やかなプラン。
庇、白い壁、リズミカルな窓の連続が快適空間を生みだす「鍵」となっています。
子供の成長した時のプライベートスペースと収納量も十分に確保された設計です。
| 単世帯 | 家族5人 |
|---|---|
| 家族構成 | 夫45歳 妻43歳 長女10歳 次女8歳 長男6歳 |
| 住宅区分 | 建替え |
| 住宅購入期間 | 1年7ヶ月 |
| こだわった点 | 構造・性能【断熱】 |
| 購入価格 | 2,735万円 |




アザレアの外観に一目惚れし、自然と時間のつながりを重視したこの佇まいは開放感溢れています。
また、敷地内のウッドデッキや外塀は、プライバシーを確保するとともに外の景色を切り取る重要な役割も兼ねています。
囲まれた敷地の中でも自然と人と街がゆるやかにつながる設計デザインが特徴です。
| 単世帯 | 家族3人 |
|---|---|
| 家族構成 | 夫38歳 妻36歳 長女10歳 |
| 住宅区分 | 住替え |
| 住宅購入期間 | 1年5ヶ月 |
| こだわった点 | 素材【外壁】 |
| 購入価格 | 3,268万円 |



奥様のご両親がお持ちの土地の上に、住宅を建築。
木の幹のように地に根差した外観フォルムや、はせいしたバルコニー・庇・煉瓦積みの影【陰】のコントラストが、住まいに趣を与える。
日本建築の陰影を活かしたこの佇まいは、より豊かな空間と時間を提供してくれる。
| 単世帯 | 家族4人 |
|---|---|
| 家族構成 | 夫35歳 妻35歳 子供9・7歳【男】 |
| 住宅区分 | 住替え |
| 住宅購入期間 | 1年 |
| こだわった点 | 素材【外壁】 |
| 購入価格 | 3,568万円 |



新築マンション購入も視野に入れていたが、自然を感じさせることが子育てに重要であるという想いから、マイホーム購入を決意。
限られた予算の中でも寛ぎと安らぎを感じられるワンルーム空間を実現しながら、内と外のつながりを実現した佇まいである。
| 単世帯 | 家族3人 |
|---|---|
| 家族構成 | 夫32歳 妻28歳 長男4歳 |
| 住宅区分 | 住替え |
| 住宅購入期間 | 1年3ヶ月 |
| こだわった点 | デザイン【外壁】 |
| 購入価格 | 2,438万円 |


閑静な住宅街で建築されるこの住まいはシンプルでありながら落ち着きのある外観を選択。
歳を重ねても飽きのこない外観と内部空間にこだわり、自然を身近に感じられる佇まいを実現している。
| 単世帯 | 家族4人 |
|---|---|
| 家族構成 | 夫42歳 妻38歳 長男8歳 長女5歳 |
| 住宅区分 | 住替え |
| 住宅購入期間 | 1年5ヶ月 |
| こだわった点 | デザイン【間取り】 |
| 購入価格 | 2,897万円 |

